Котел 3.5 МВт на мазуте в Ставрополе

  • Автоматическое регулирование температурных режимов
  • Надежная гладкотрубная конструкция исключает деформации и разрывы швов
  • Встроенная система взрывобезопасности
  • Низкие требования к качеству питательной воды
  • Модель работает с отечественными горелками EMMA, ILKA, РГМГ, ГБЛ, ГМ, ГМГ, АПНД, ГГ и импортными горелками UNIGAS, BALTUR, ECOSTAR, FBR S.R.L.
  • Наш завод также производит модели котлов для работы на российских горелках БИГ, ГМГ, РМГ, ГГ, РГМГ.
Цена с НДС:
1 612 000 рублей
Цена с НДС на котел 3.5 МВт на мазуте с доставкой в
от 1 612 000 рублей
Условия в
В наличии на складе
Доставка ТК по России и Казахстану
Безналичный расчет
Есть в наличии
Можно купить в лизинг
Мазутный котел 3.5 МВт водогрейный
Водогрейный мазутный котел 3.5 МВт
Мазутный котел 3.5 МВт
Котел 3.5 МВт мазутный
Мазутные котлы 3.5 МВт
Котлы 3.5 МВт на мазуте
Промышленные мазутные котлы 3.5 МВт
Промышленные котлы 3.5 МВт на мазуте
Мазутные котлы 3.5 МВт - производство
Производство мазутных котлов 3.5 МВт
Мазутный котел 3.5 МВт водогрейный
Мазутный котел 3.5 МВт
Мазутные котлы 3.5 МВт
Промышленные мазутные котлы 3.5 МВт
Мазутные котлы 3.5 МВт - производство
Видеообзор
Вид топки Мазутная горелка
Максимальная тепловая мощность 3.5 МВт
Топливо Мазут, Отработанное масло, Жидкое
Отапливаемая площадь от 29300 до 38400 м²
Технические
характеристики
Описание
товара
Комплект
поставки
Дополнительное
оборудование
Монтаж и схемы
подключения
Сертификаты
и гарантии
Подбор
котла

Технические характеристики котла 3.5 МВт на мазуте

Вид Водогрейный
Тип отопительного котла Жидкотопливный
Бренд HeatExpert
Марка HeatExpert
Тип Котел КВа
Вид топки Мазутная горелка
Максимальная тепловая мощность 3.5 МВт
Максимальная тепловая мощность 3500 кВт
Максимальная тепловая мощность 3.01 Гкал
Диапазон регулирования мощности 40-100 %
Топливо Мазут, Отработанное масло, Жидкое
Низшая теплота сгорания проектного топлива 9260 кКал/нм³
КПД котла на МАЗУТЕ, не менее 92 %
Расход МАЗУТА среднечасовой за отопительный сезон 197 кг/ч
Расход МАЗУТА при максимальной нагрузке котла 352 кг/ч
Расход условного топлива 466 кг/ч
Максимальная температура воды на выходе из котла 115 °C
Минимальная температура воды на входе в котел 55 °C
Давление рабочей среды 0.3-0.6 (3-6) МПа (кгс/cм²)
Номинальный расход теплоносителя 120 м³/ч
Расход теплоносителя через котел min-max 90-150 м³/ч
Гидравлическое сопротивление при номинальном расходе не более 0.07 (0.7) МПа (кгс/cм²)
Аэродинамическое сопротивление 280 (28) Па (мм. вод. ст.)
Давление в топочной камере 330 (33) Па (мм. вод. ст.)
Объем уходящих газов 6550 м³/ч
Температура уходящих газов, не более 169 °C
Тяга Принудительная
Водяной объем котла 1500 л
Объем топочной камеры 8.67 м³
Размер топочной камеры: длина*ширина*высота 4100х1510х1400 мм
Присоединительные размеры по водяному тракту 200 Ду
Присоединительные размеры газохода уходящих газов, ширина*высота / сечение 1100х215/0.24 мм/м²
Размеры корпуса котла, длина*ширина*высота, погрешность ±50 4400х1765х2570 мм
Габаритные размеры котла, длина*ширина*высота 4630х1905х2670 мм
Масса 6100 кг
Конструкция котла водотрубная
Количество контуров Одноконтурный
Размещение Напольный
Тип камеры сгорания Закрытый
Управление Электронное
Энергонезависимый Нет
Тип питания Трехфазное
Встроенный циркуляционный насос Нет
Встроенный расширительный бак Нет
Энергоэффективность Высокая
Отапливаемая площадь от 29300 до 38400 м²
Отапливаемый объем от 87700 до 115000 м³
Чертеж котла КВа 3.5 М
Котел КВа 3.5 М чертеж

Водогрейный котел 3.5 МВт на мазуте в Ставрополе

Трехходовой водогрейный мазутный котел 3.5 МВт Ставрополь устанавливается в стационарных и блочно модульных котельных для отопления и горячего водоснабжения больших производственных помещений и маленьких зданий, складов, гаражей, цехов, ангаров, автосервисов, школ, садиков, клубов, магазинов, больниц, санаториев, теплиц, птицефабрик, СТО, площадью 29300 – 38400 м2.

Российский котел 3.5 МВт на мазуте отопительный водогрейный использует в качестве топлива мазут и отработку, работает в открытых и закрытых системах теплоснабжения с принудительной циркуляцией воды при рабочем давлении до 0,6 МПа и температурой нагрева до 95 - 115 °С.

Особенности наших котлов

Трубный стальной водогрейный котел 3.5 МВт на мазуте работает с длинофакельными блочными отечественными и импортными горелками таких производителей, как ILKA и другими. Наш завод также производит модели котлов для работы на российских горелках РГМГ, ГБЛ, ГМ, ГМГ, АПНД.

Регулирование заданных температурных режимов производится в автоматическом режиме, за счет чего обеспечивается эффективное сжигание топлива.

Экономичная работа котла обеспечивается максимальным снижением потерь теплоты, соответственно меньшим расходом топлива. Для исключения теплопотерь, мы сделали наши котлы газоплотными, с качественной теплоизоляцией.

В водотрубных котлах теплоноситель поступает через коллектора с перегородками и распределяется по трубной системе равномерными потоками с высокой скоростью. Такая схема движения потока воды исключает образование застойных зон, локальный перегрев поверхностей нагрева, местное выпадение солей и отложения накипи, и делает агрегат менее требовательным к качеству питательной воды.

Водотрубная конструкция котла максимально безопасна в работе. Даже при внезапном снижении давления внутри теплогенератора до атмосферного не произойдет выделение пара, и он не взорвется.

Устройство водогрейного котла 3.5 МВт на мазуте

Котельный блок

Котельный блок имеет гладкотрубную конструкцию, что обеспечивает повышенную надежность. Трубная система собирается из труб ввариваемых в коллектора, а не в трубные доски. В таком теплогенераторе отсутствует давление перегретых труб на трубную доску и напряжения в сварных швах, вызывающее деформации и разрыв швов.

Гладкотрубная поверхность нагрева воды имеет развитую поверхность, при компактных внешних размерах плотный пучек конвективных труб, расположенных в шахматном порядке и омываемый дымовыми газами в поперечном направлении обеспечивает высокую тепловую эффективность котельного блока. Газы в котле делают три хода – в топке, в первом конвективном пакете и во втором.

Топка

Промышленный водогрейный котел 3.5 МВт работающий на мазуте выполнен с газоплотной топкой. Топка газоплотного исполнения максимально снижает теплопотери с уходящими продуктами сгорания, сохраняя свою герметичность даже при многократных растопках и остановках. Газоплотная топка исключает присосы холодного воздуха, что приводит к увеличению температуры факела и скорости горения, тем самым снижая механический недожег.

В заднем экране топки установлен взрывной клапан, предохраняющий конструкцию котлоагрегата от разрушения при возникновении избыточного давления в топке. Горелка крепится во фронтовой части топочной камеры. Отверстие во фронтальной плите изготавливается под конкретную модель горелки.

Топка такой конструкции позволяет использовать облегченную теплоизоляцию. Легкая обмуровка снижает массу котла и упрощает обслуживание котлоагрегата.

Конвективная часть котла

Конвективный пакет представляет собой ряд труб расположенных в шахматном порядке. Шахматное расположение труб позволяет максимально омывать поверхности нагрева, тем самым снижая потерю теплоты и повышая теплоотдачу. Увеличение теплопередачи позволяет снизить расход топлива. Применяемая схема противотока снимает тепло из выходящих газов и с теплоносителем возвращает его обратно в промышленный водонагревательный котел отопления на дизельном топливе.

Многочисленные перегородки, установленные в коллекторах теплового котла, направляют поток теплоносителя, исключая возникновение застойных зон и локальный перегрев поверхностей нагрева. Высокие скорости и турбулизация потока воды снижают образование накипи, производственный мазутный котел 3.5 МВт для отопления надежно работает без специальных мероприятий по химводоподготовки.

Совместимые горелочные устройства

Автоматический водогрейный мазутный котел 3,5 МВт российского производства работает с отечественными горелками ILKA, РГМГ, ГБЛ, ГМ, ГМГ, АПНД. Горелки подают топливо в топочную камеру, где происходит его сжигание и нагрев теплоносителя. Блочная горелка осуществляет сжигание топлива, изменяет режим горения, обеспечивает поддержание в контуре котла температуру воды до 115 °С. Диапазон температуры воды в контуре агрегата задается на пульте управления. При достижении крайних значений автоматически осуществляется включение и выключение горелки. Этот режим обеспечивает надежную и экономичную работу котла.

Принцип работы котла 3.5 МВт на мазуте

Работа водогрейного отопительного котла 0 15 МВт работающего на мазуте и отработанном масле, с универсальной топочной камерой, осуществляется с широким рядом горелочных устройств. Топливо направляется в горелку, где смешивается с воздухом, воспламеняется и направляется в топочное пространство. Горелка регулирует скорость подачи топлива, исходя из его компонентов, и обеспечивает стабильность горения. Тепло передается экранам и с дымовыми газами направляется в конвективные поверхности нагрева, нагревая теплоноситель. Дымовые газы проходят конвективную поверхность нагрева, где охлаждаются до 200-180 °С и удаляются через дымовую трубу.

Заданный диапазон температуры воды, но не более 115 °С, поддерживается горелкой. По мере достижения предельных значений горелочное устройство автоматически отключается и включается, обеспечивая надежность и экономичность работы.

Монтаж и комплектация

Отечественный водогрейный котел 3.5 МВт мазутный промышленный поставляется готовым напольным блоком в обшивке с паспортом и инструкцией по эксплуатации, окончательная цена включает базовую комплектацию, затворы, предохранительные клапаны, вентили, термометры, манометры, трехходовые краны. Автоматика, горелка, насосы поставляются по запросу.

Компактный горизонтальный напольный мазутный котел 3,5 МВт для отопления устанавливается в котельной на специально подготовленную ровную поверхность и закрепляется анкерными болтами. Далее подсоединяется по воде, устанавливается запорная арматура на подводящем и отводящем трубопроводе, устанавливаются предохранительные клапаны, дренажи, воздушники и контрольно измерительные приборы, монтируется газоход.

Купить котел 3.5 МВт на мазуте

Для того чтобы купить мазутный котел 3.5 МВт в Ставрополе вы можете оформить заявку в отделе сбыта по телефону 8-800-700-06-43, либо оформить заявку онлайн. Инженеры-консультанты помогут выбрать подходящие модели и котельно-вспомогательное оборудование, рассчитают стоимость доставки до вашего региона и населенного пункта. Транспортирование котлоагрегатов может осуществляться транспортными компаниями, автомобильным транспортом, железнодорожным и речным видами транспорта.

Комплект поставки котла 3.5 МВт на мазуте

Цена водогрейного котла 3.5 МВт на мазуте включает в себя запорную арматуру и КИП в пределах котла, вентилятор поддува и предохранительные клапаны. Ниже приведена подробная информация.

Дополнительное оборудование котла 3.5 МВт на мазуте

Для эффективной и надежной работы котла 3.5 МВт на мазуте вам потребуется дополнительное оборудование - автоматика, дымосос, золоуловитель, насос сетевой и подпиточный, газоходы и переходники для газового тракта, дымовая труба. Мы предлагаем рассмотреть типовые варианты комплектации. В случае если у вас на объекте имеется насосное и тягодутьевое оборудование, мы можем проверить совместимость котла 3.5 МВт на мазуте нашего производства и вашего оборудования. Можем изготовить нестандартные узлы для выполнения быстрого монтажа котла - газоходы и узлы обвязки. Типовую схему монтажа котла вы можете посмотреть во вкладке схемы подключения.

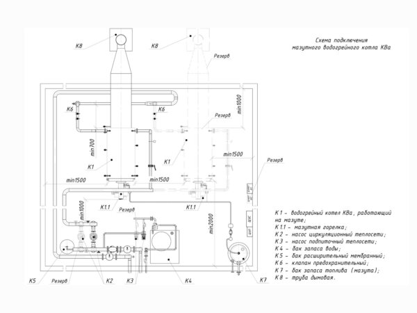
Монтаж и схемы подключения котла 3.5 МВт на мазуте

Водогрейный стальной отопительный котел 3.5 МВт на мазуте, предназначен для получения горячей воды номинальной температурой на выходе из котла от 95 до 115 °С рабочим давлением до 0,6 (6,0) МПа (кгс/см), используемой в системах централизованного теплоснабжения на нужды отопления, горячего водоснабжения. Устанавливается в производственных, промышленных и отопительных котельных.

Монтаж и подключение котла 3.5 МВт на мазуте

Схема подключения водогрейного котла КВа на мазуте

Схема подключения мазутного котла КВа

Сертификаты и гарантии котла 3.5 МВт на мазуте

Водогрейный котел 3.5 МВт на мазуте имеет гарантийный срок 24 месяца. Срок работы при соблюдении правил монтажа и эксплуатации оборудования 10 лет.

Водогрейные котлы сертификат
Сертификат на водогрейные котлы
Сертификат на водогрейные котлы на газе и жидком топливе
Сертификат на водогрейные котлы на газе и жидком топливе

Подберите мощность котла для вашего объекта

Тип здания
Регион
Населенный пункт
Наружный объем здания
3)
Отапливаемый подвал
Объем подвала
3)

Отзывы о продукции

Другая похожая продукция

Газовый котел 3.5 МВт
Котел 3.5 МВт газовый
Максимальная тепловая мощность, МВт 3.5
Топливо Газ
Вид топки Газовая горелка
Отапливаемая площадь, м² от 29300 до 38400
1 580 000 ₽
Дизельный котел 3.5 МВт водогрейный
Котел 3.5 МВт на дизеле
Максимальная тепловая мощность, МВт 3.5
Топливо Дизель, Жидкое
Вид топки Дизельная горелка
Отапливаемая площадь, м² от 29300 до 38400
1 580 000 ₽
Мазутный котел 3.0 МВт
Котел 3.0 МВт на мазуте
Максимальная тепловая мощность, МВт 3, 3.0
Топливо Мазут, Жидкое, Отработанное масло
Вид топки Мазутная горелка
Отапливаемая площадь, м² от 25000 до 32900
1 428 000 ₽
Мазутный котел 4.0 МВт
Котел 4.0 МВт на мазуте
Максимальная тепловая мощность, МВт 4, 4.0
Топливо Мазут, Жидкое, Отработанное масло
Вид топки Мазутная горелка
Отапливаемая площадь, м² от 33400 до 44000
1 714 000 ₽
Котел под российскую горелку
Котел КВГ 3.5 МВт газовый (под отечественную горелку ГГ и ГБЛ)
Максимальная тепловая мощность, МВт 3.5
Топливо Газ
Вид топки Газовая горелка
Отапливаемая площадь, м² от 29300 до 38400
1 580 000 ₽
Котел под российскую горелку
Котел КВГМ 3.5 МВт мазутный (под отечественную горелку ГМГ)
Максимальная тепловая мощность, МВт 3.5
Топливо Мазут, Жидкое
Вид топки Мазутная горелка
Отапливаемая площадь, м² от 29300 до 38400
1 612 000 ₽
Котел под российскую горелку
Котел КВЖ 3.5 МВт дизельный (под отечественную горелку РМГ)
Максимальная тепловая мощность, МВт 3.5
Топливо Дизель, Жидкое
Вид топки Дизельная горелка
Отапливаемая площадь, м² от 29300 до 38400
1 580 000 ₽